Prime opportunity in the centre of Neath for a long established licensed cafe/restaurant and retail unit in the centre of Neath with planning permission for a two bedroom apartment to upper floors. Sold due to retirement with fixtures and fittings included. The property could be also suitable for a variety of uses subject to consents.
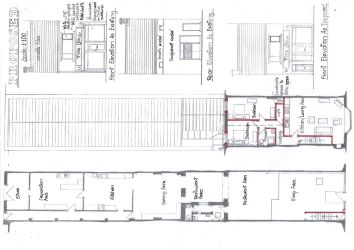
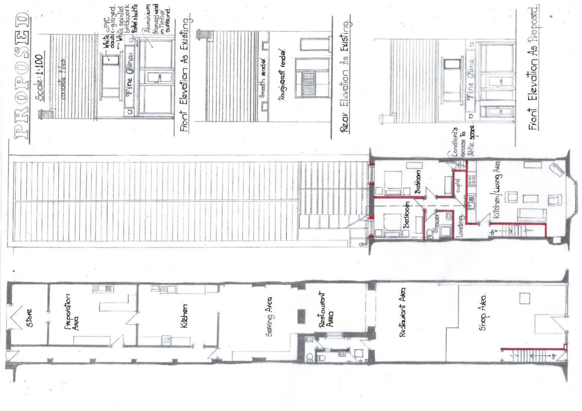
The property itself is deceptively spacious and covers the entire block depth through to a pedestrian access at the rear on Queen street back road. The ground floor retail and café unit briefly comprises a retail section to the front of the unit, this leads through to the café/restaurant section of the building which covers three sections with total seating for approximately 64 customers. Beyond this is the kitchen servery with a further preparation kitchen to the rear and a rear store with double doors to the rear lane. There is also a customer WC.
We are informed that fixtures and fittings will remain in the property including display cabinets, tables and chairs as well as a full suite of kitchen equipment in both kitchen areas but please examine the legal pack for further detail once available. A list is available for interested parties. The property further benefits from a 3 phase electrical supply and air conditioning (neither tested).
Upstairs there are three rooms with a further loft room which are used as storage at present. Planning permission was awarded for a self contained two bedroom flat to the first floor and the creation of doorway in the shop front. Interested parties are directed to examine the full plans on the Neath Port Talbot planning department website - ref P2021/0214.
Please see the 3D VR walkthrough tour for a full appreciation of the space included in this property.
GF - Retail unit, cafe/restaurant, 2 x kitchens, rear lobby, store
FF - Three rooms
SF - Loft room
Informed Freehold – please refer to legal pack for verification of tenure
Viewing by appointment with Seel and Co – www.seelandco.com/auctions
Buyer's Premium - 1.20% with a minimum of £1,200 (inc of VAT) payable on exchange of contracts. Please refer to the legal pack for any further disbursements to be paid by the purchaser on completion.
Each property sold is subject to a Reserve Price. The Reserve Price, which is agreed between the seller and the auctioneer just prior to the auction, will be within + or - 10% of the Guide Price. The Guide Price is issued solely as a guide so that a buyer can consider whether or not to pursue their interest. Both the Guide Price and the Reserve Price can be subject to change up to and including the day of the auction.
Auctioneers Office, Seel and Co (029) 2037 0117
FOR SALE BY PUBLIC AUCTION on Tuesday, 9 December 2025 online via the Seel and Co website. Bidding will commence from midday on Monday, 8 December and conclude in order from Lot 1 at 4:00 pm on Tuesday, 9 December 2025
We've partnered with Cornerstone Commercial Finance to offer a wide range of finance options from bridging loans to development finance.
Apply for Finance* Generally speaking Guide Prices are provided as an indication of each seller's minimum expectation, i.e. 'The Reserve'. They are not necessarily figures which a property will sell for and may change at any time prior to the auction. Virtually every property will be offered subject to a Reserve (a figure below which the Auctioneer cannot sell the property during the auction) which we expect will be set within the Guide Range or no more than 10% above a single figure Guide.
By setting a proxy bid, the system will automatically bid on your behalf to maintain your position as the highest bidder, up to your proxy bid amount. If you are outbid, you will be notified via email so you can opt to increase your bid if you so choose.
If two of more users place identical bids, the bid that was placed first takes precedence, and this includes proxy bids.
Another bidder placed an automatic proxy bid greater or equal to the bid you have just placed. You will need to bid again to stand a chance of winning.