Two storey office investment property in the centre of Newport let for £12,000 per annum representing an Initial Gross Yield of 12%. Planning awarded for conversion to a 5 bed HMO.
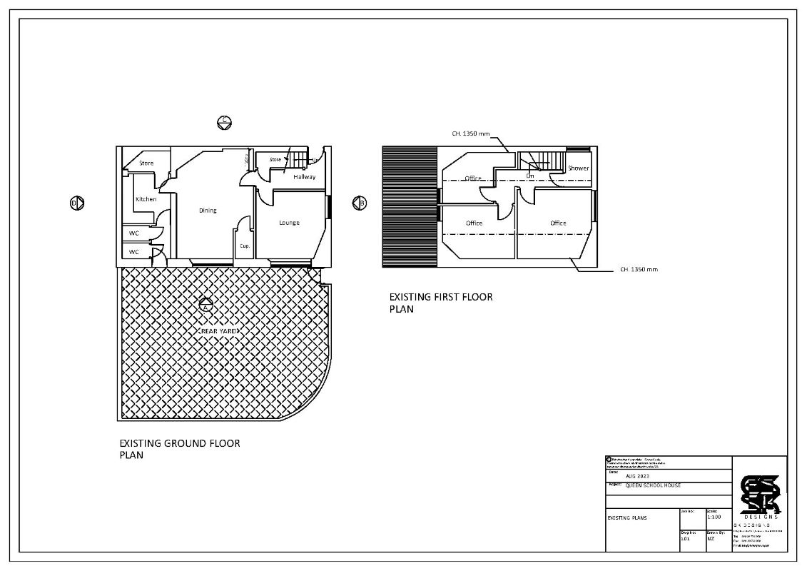
The building is a former school house and appears to be of brick and stone construction under a pitched tile roof. The internal accommodation appears to be in good order and briefly comprises two offices on the ground floor with kitchen and WC facilities with three offices and a shower room on the first floor. There is also a large enclosed rear yard.
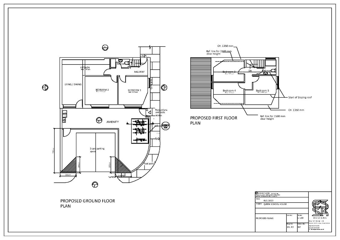
The property also benefits from full planning approval to convert to a five bedroom HMO property with off-street parking. Please consult Newport City Council's planning portal for further details, reference 23/0342.
GF: Entrance hall, two offices, kitchen, storage, lobby, WC
FF: Three offices, shower room
OS: Enclosed rear yard.
Informed Freehold – please refer to legal pack for verification of tenure
Viewing by appointment with Seel and Co – www.seelandco.com/auctions
Buyer's Premium - 1.20% with a minimum of £1,200 (inc of VAT) payable on exchange of contracts. Please refer to the legal pack for any further disbursements to be paid by the purchaser on completion.
Each property sold is subject to a Reserve Price. The Reserve Price, which is agreed between the seller and the auctioneer just prior to the auction, will be within + or - 10% of the Guide Price. The Guide Price is issued solely as a guide so that a buyer can consider whether or not to pursue their interest. Both the Guide Price and the Reserve Price can be subject to change up to and including the day of the auction.
Auctioneers Office, Seel and Co (029) 2037 0117
FOR SALE BY PUBLIC AUCTION on Tuesday, 8 December 2025 online via the Seel and Co website. Bidding will commence from midday on Monday, 8 December and conclude in order from Lot 1 at 4:00 pm on Tuesday, 9 December 2025
We've partnered with Cornerstone Commercial Finance to offer a wide range of finance options from bridging loans to development finance.
Apply for Finance* Generally speaking Guide Prices are provided as an indication of each seller's minimum expectation, i.e. 'The Reserve'. They are not necessarily figures which a property will sell for and may change at any time prior to the auction. Virtually every property will be offered subject to a Reserve (a figure below which the Auctioneer cannot sell the property during the auction) which we expect will be set within the Guide Range or no more than 10% above a single figure Guide.
By setting a proxy bid, the system will automatically bid on your behalf to maintain your position as the highest bidder, up to your proxy bid amount. If you are outbid, you will be notified via email so you can opt to increase your bid if you so choose.
If two of more users place identical bids, the bid that was placed first takes precedence, and this includes proxy bids.
Another bidder placed an automatic proxy bid greater or equal to the bid you have just placed. You will need to bid again to stand a chance of winning.